Modern open-plan kitchen and living area with large windows and a floating staircase
Modern hallway with wooden floor, glass stair railing, large window, and skylights
Modern minimalist kitchen with dark cabinetry, light wood flooring, and a marble island with two bar stools
Modern hallway with glass balustrade, wooden floor, skylights, and large windows.

Planning Applications

Once you are completely happy with the design solution reached during the Feasibility Study, it’s time to get the ball rolling by submitting the relevant planning applications.

To create a new building or to make major changes to an existing property, you’ll need formal consent from the local planning authority. 

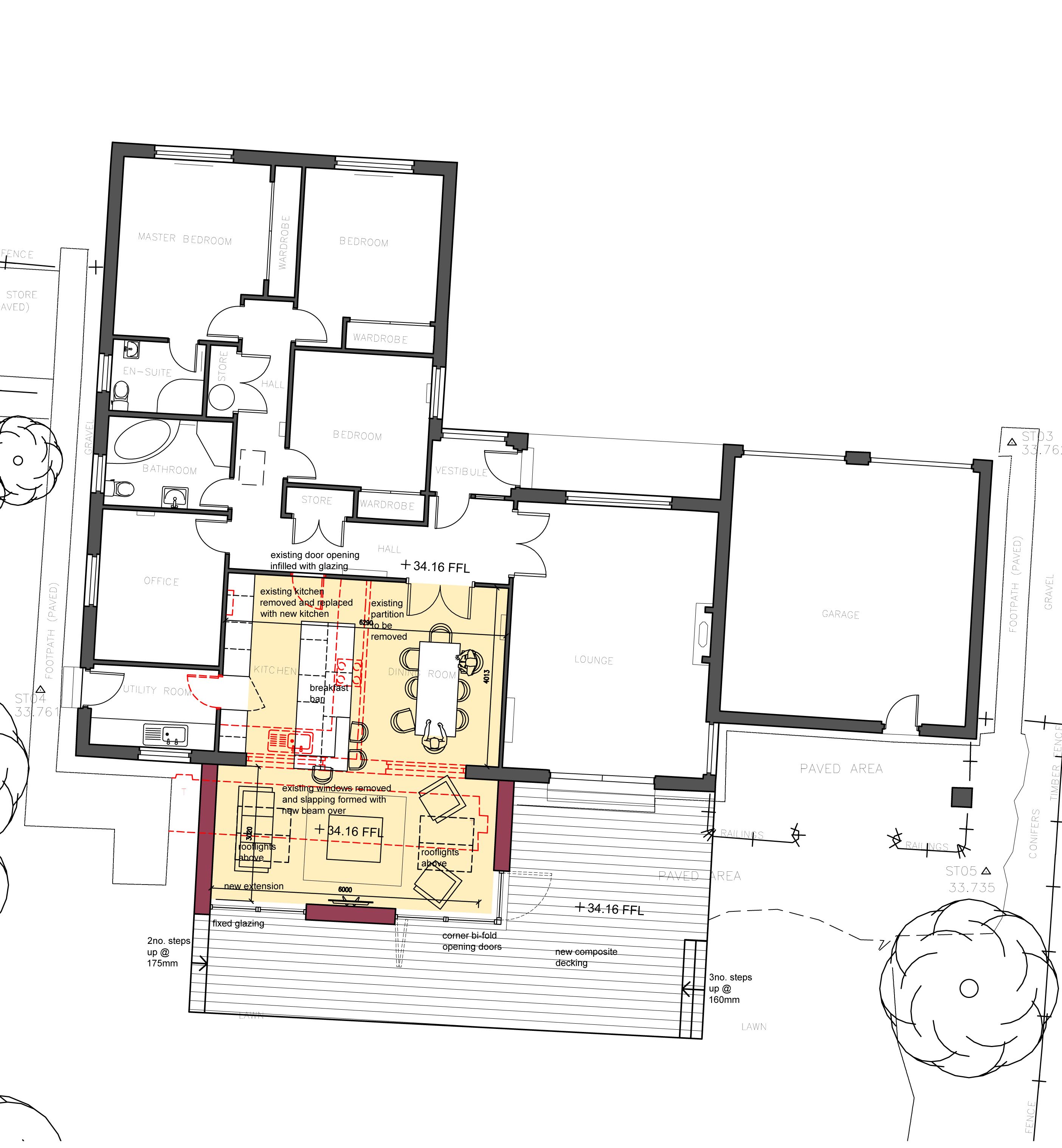
Architectural floor plan for a proposed ground floor extension at Letham Grange, by Voigt Architects.

What are Planning Applications?

To start the process, we’ll begin preparation of planning drawings that go into finer detail. We’ll also establish a liaison with planning officers to provide a comprehensive application with all the information they need. The impact of your project will be considered against local and national planning policies. 

The planning system plays a crucial role in making sure that every project has a positive impact on the surrounding area. By preventing unsafe and inappropriate development, they can retain the character of an area and preserve sustainable growth. 

As a thoroughly experienced architecture practice, we know the different types of planning permission you’ll need and the detailed requirements of each. Our detailed applications bring your vision together with planning policy considerations to increase your chances of a smooth planning application process.

Architectural drawing showing four proposed elevations of a single-story house with details for south, east, north, and west views.

How we help you with Planning Applications

The world of planning permissions, regulations and applications can be complex. Our experienced team has an in-depth knowledge of the process, knowing which applications must be submitted and presenting the proposal in the best possible manner.

We always consider planning applications during the feasibility study. This means that by the time we have agreed on your design solution, you’ll have already increased your chances of success.

For more complex projects, or those facing objections, we’ll liaise with project officers and local planning authorities to find the best way forward for you. 

Timescale: Generally, 8-10 weeks

What happens next?

Once we have planning permission, we’ll examine the project in greater detail, likely involving a Structural Engineer and applying for a building warrant. 

Building Warrant Application

RIAS logo featuring a detailed circular seal and text: The Royal Incorporation of Architects in Scotland
Royal Institute of British Architects (RIBA) logo with stylized lions and text
Architects Registration Board logo
CIAT Chartered Practice logo featuring a lion's head, architectural columns, and the CIAT initials