Modern black barn-style house with metal roof surrounded by trees and open fields
Modern open-plan kitchen and living area with large windows and a floating staircase
Scroll Scroll

Our Services

From initial concept to construction and completion, our services cover the entire project lifecycle. We can guide you smoothly through the architectural journey to bring your unique vision to life.


Our experienced team bring precision, detail and expert advice at each stage of the process. We have honed our craft in each of our services, offering a personal experience with a prompt turnaround of design work and clear, open conversations. 


Our first consultation is completely free. After sitting down to hear your plans and discuss your ideas, we’ll visit your property or plot to discuss the possibilities. 

Hand-drawn floor plan sketch with labeled rooms and blue ink highlights
Feasibility Study

Using our extensive experience and knowledge, we’ll discuss your vision and explore the practical possibilities. We’ll develop sketches and drawings to start the process of bringing your project to life.

See More

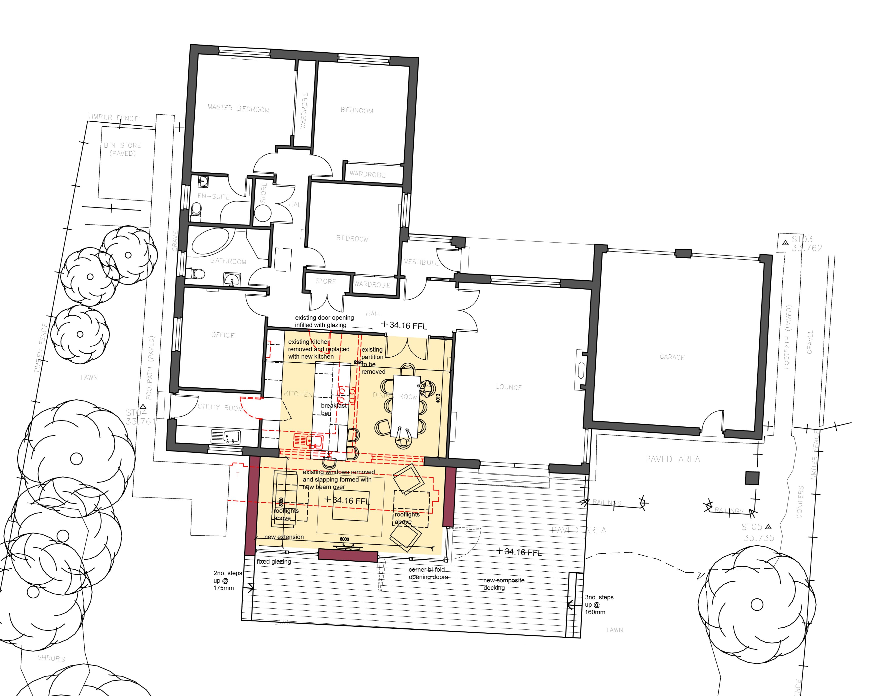
Architectural floor plan for a proposed ground floor extension at Letham Grange, by Voigt Architects.
Planning Applications

Once you are completely happy with the design solution, we’ll apply for planning permission. Our experienced team can advise you on planning requirements to make this a smooth process.

See More

Architectural section showing building details with enlarged circular insets focusing on roof and foundation construction.
Building Warrant Application

Now we’ll go into really fine details, mapping out everything from lighting layout to heating options. Once you are fully satisfied with every single detail, we’ll apply for a building warrant.

See More

Modern single-story house with a gable roof, large windows, stone accent wall, and a raised wooden deck.
Construction Phase & CDM

As the project enters the construction phase, the build is almost ready to begin. We’ll collate the essential health and safety documentation, ready to run through with the chosen Building Contractor.

See More

Wooden house frame under construction with reflective insulation material on the exterior
Contract Administration & Construction Works

To commence construction works, we will manage contract administration. This includes assisting with the selection of a building contractor and overseeing the progression of the build in accordance with the contract.

See More

Modern house with stone and tile exterior, wooden deck, and outdoor seating area.
Completion and Handover

Your project has made it off the page and into reality. We’ll assist with snagging and our final inspections before applying for the Completion Certificate and handing you the keys to your brand new building.

See More

  Highly recommend!

We've had a fantastic working relationship with Voigt Architects, especially with Lee Fotheringham. Lee is professional, creative, and easy to work with, making every project run smoothly. The whole team is reliable, responsive, and great at what they do. Highly recommend!

Bruce Sheridan
  Couldn’t recommend VOIGT highly enough

The team at VOIGT were there to guide and support us every step of the way. They were outstanding from the initial design phase right through to the finished build. We genuinely couldn’t have done it without them.

We’re absolutely delighted with the result and couldn’t recommend VOIGT highly enough.

Ralph Young
  Met our expectations and more

I approached Lee/Voigt partnership for some advice on extending my home. They listened to every detail that I had visioned and within a few days came back with the outline drawings than met our expectations and more. Always very helpful and patient. Give an in-depth overview of the whole planning process and how long each stage would take.

Sean Scrimger
  Approachable staff and an excellent outcome

We approached this company in order to take forward our Garden Room project. We found their staff to be professional in all matters of preparing plans according to our specific elements, approaching relevant companies and dealing with Council requirements and subsequent documentation. We highly recommend them for an exciting service, approachable staff and an excellent outcome which we are now enjoying!!

Bill Leheny
  Gold standard service

Persimmon Homes North Scotland have worked with VOIGT Architects on a wide range of housing developments. Lee and the team always provide gold standard service and are highly recommended.

Euan McLaughlin
  We are extremely happy with the outcome

Lee and the team were excellent when we undertook a kitchen, utility and shower room extension, followed by a further sunroom extension a few years later. They were great at interpreting our ideas and putting them into reality. Any issues were quickly solved and we are extremely happy with the outcomes.

Lynne Martin
  Very helpful and efficient

We worked with Voight Architects on our replacement shower/ toilet and laundry block at Elliot Caravan Park. Lee and the team were very helpful and efficient during the whole build process.

Suzanne Cargill
  They made the experience stress free

Very good service , they really tailored there service to us. They came up with great ideas and had a great attention to detail. They made the experience stress free. Would highly recommend them.

Mike Lee
  Would highly recommend

Very professional and friendly service, would highly recommend.

Donald Morrison
  Far more than we expected

We are delighted with the extension designed for us by Voigt, which they faithfully and reliably supervised through its building. The final result transformed a gloomy and cramped ground floor, providing us with added space, new flexibility and lots of natural light, all in such a way that it looks as if it was always like this. Their design suggestions gave us far more than we expected and the final finish is much admired by all who visit. I thoroughly recommend Voigt Architects

Martin Thomson
  Making my home my dream home

Making my home my dream home. From the first consultation to the aftercare on completion was fantastic. A big shout out to Jonathan and Kenny for their help and professionalism along the way. Choosing to build your home is a massive undertaking but the guidance and service from all at Voigt made it a lot less stressful and were always there to bounce ideas off of. Couldn’t have wished for a better service and the feedback from anyone who has visited the house says it all, WOW!

Mike Swankie
Modern kitchen interior with wooden flooring, large island, and floating staircase.
Modern hallway with stone wall, skylight, and glass door leading outside
Modern office space with large window overlooking a garden, black leather chair and couch, wooden desk, and multiple computer monitors.
Modern staircase with wooden steps, glass railing, and chevron patterned wooden floor in a contemporary home interior
RIAS logo featuring a detailed circular seal and text: The Royal Incorporation of Architects in Scotland
Royal Institute of British Architects (RIBA) logo with stylized lions and text
Architects Registration Board logo
CIAT Chartered Practice logo featuring a lion's head, architectural columns, and the CIAT initials