Modern open-plan kitchen and dining area with wooden furniture and pendant lights
Modern living room with large windows, a beige sofa, indoor plants, and a view of greenery outside.
Modern living room with cozy furniture, wall art, and open shelves with decor items.
Bright, modern living and dining area with rustic wooden table and bench, large windows, and view of balcony and trees.

Feasibility Study

The first crucial element in the architectural process is the Feasibility Study. This study is essential to determine the practical realities of the build and avoid costly pitfalls later down the line.

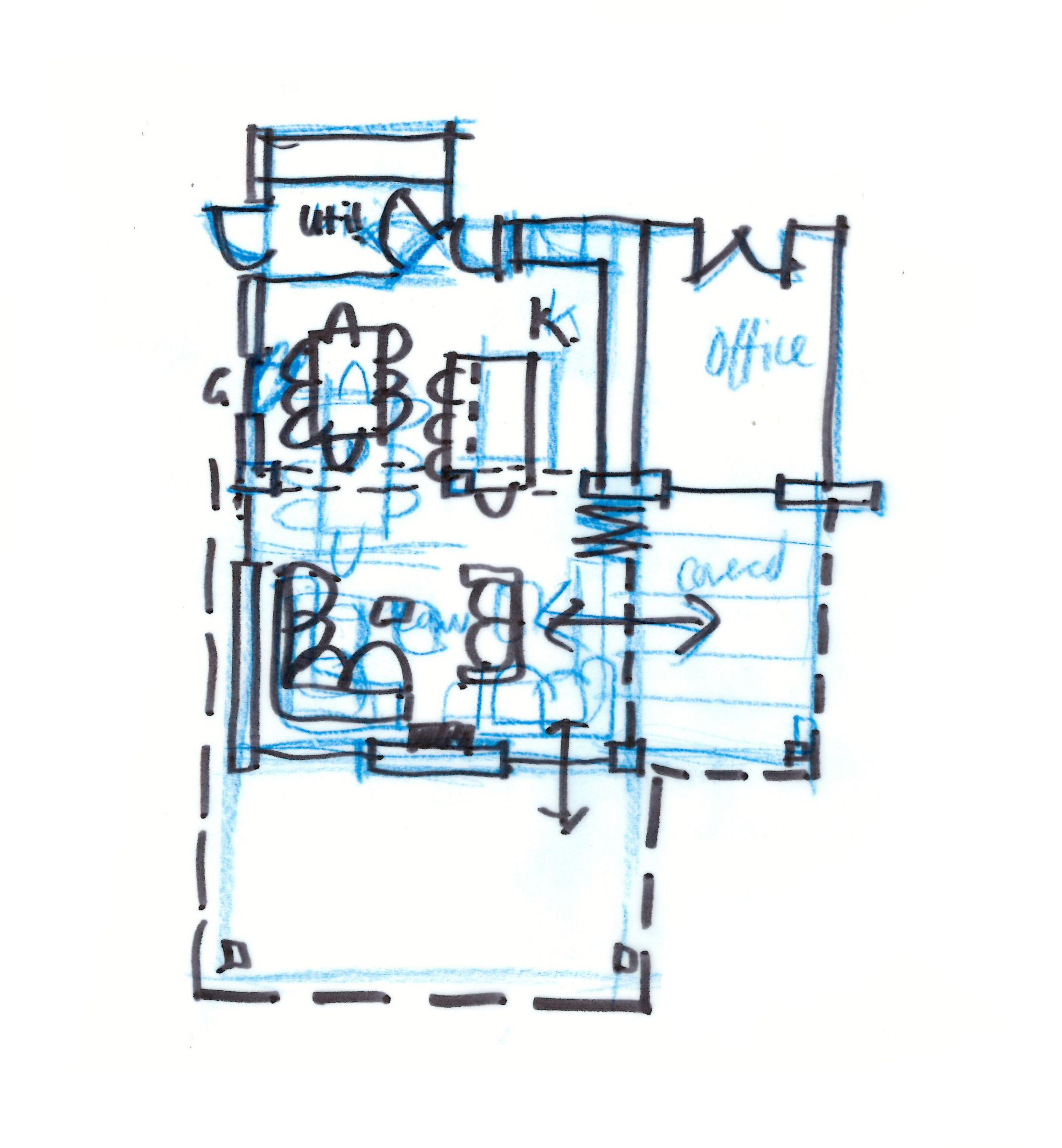
Hand-drawn floor plan sketch with labeled rooms and blue ink highlights

What is a Feasibility Study?

First, we sit down and listen to you — your unique vision, the ‘must-haves’ and the issues you’d like to address, the budget you’re working to, and the details of your site.

From there, we use our extensive experience and knowledge to comprehensively assess the practicality of the project. This involves delving into the details to consider the financial, architectural, and legal requirements of the proposal. We’ll carry out a buildability and access analysis, considering compliance and construction methodology to identify and resolve potential challenges as early as possible.

The Feasibility Study is an important step in bringing your vision to life. It clarifies any constraints and highlights the permissions required, providing a solid foundation for a successful architectural journey.

What happens next?

Once we have completed the study and identified the best way forward, then next step is to secure planning permission and or building warrant approval. 

Planning Permission

RIAS logo featuring a detailed circular seal and text: The Royal Incorporation of Architects in Scotland
Royal Institute of British Architects (RIBA) logo with stylized lions and text
Architects Registration Board logo
CIAT Chartered Practice logo featuring a lion's head, architectural columns, and the CIAT initials