Case Study Housing Masterplan, Railwayfield Inverkeilor

MASTERPLAN FOR HOUSING ON FORMER RAILWAY YARD 

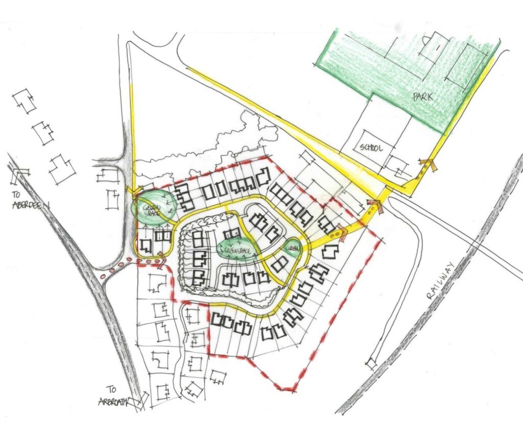
Housing Masterplan, Railwayfield Inverkeilor 

Client:  James Keiller Estates 

Location: Inverkeilor 

Status:  Phase 1 Complete 

Aerial view of a residential neighborhood development plan with houses, roads, green spaces, and a pond.

We were involved in Master planning a large site, which was a former railway yard, for 48 houses. 
 
To allow the site to be accessible and permeable, public routes were created around the existing road network, and through the central section of the site. Connections were made outside the site via a new access from the north-west corner to Inverkeilor main street; and to the east a new access would be created along the side of the Village hall connecting the site to the hall, houses, school and park/playing fields.   

Inspired?

Take the first step and get in touch if you have an idea for a similar project, and we would be happy to help you.

By submitting this form we will store your data to be able to respond to you.