Case Study Housing Masterplan, Dundee

HOUSING MASTERPLAN CASTLEVIEW DUNDEE 

Housing Masterplan, Dundee 

Client:  DJ Laing 

Location: Dundee 

Status:  Due for Completion 2023 

Aerial map of a park area divided into sections A, B, and C with a red outline and labeled streets Berwick Drive, Aberlady Crescent, and Duns Crescent.

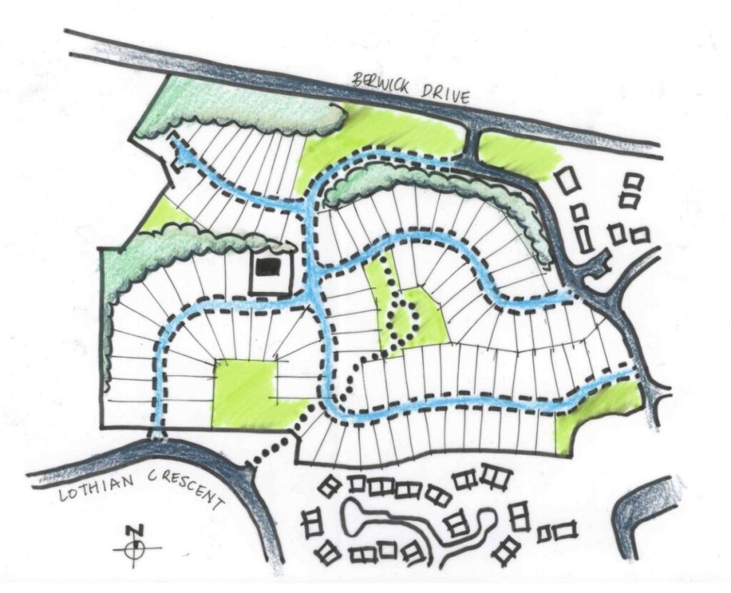
The masterplan was developed over several years in discussion with two local developers forming a partnership to develop the site. 
 
 
The local Planning Brief document illustrated an indicative layout creating a new ‘loop’ street connecting with Aberlady Crescent and the proposed layout built on this, creating a loop with a further connection in the centre. A further connection was made with Lothian Crescent at the South. Green spaces will be created throughout the site creating a pedestrian/cycle path through the site from North-South, clearly defined from the roadways.  

Inspired?

Take the first step and get in touch if you have an idea for a similar project, and we would be happy to help you.

By submitting this form we will store your data to be able to respond to you.